[+]
2016
450m2
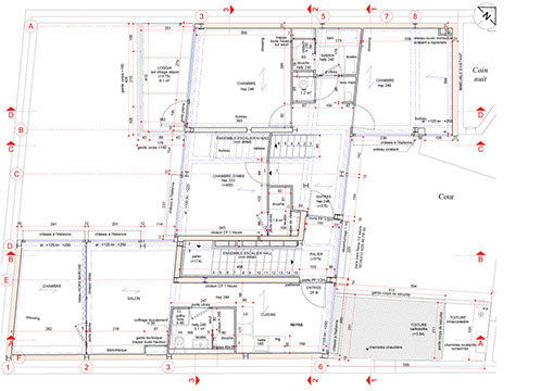
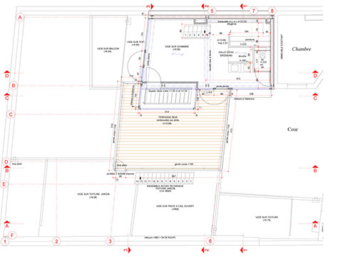
construction d'un hôtel particulier et d'ateliers
XI Paris
housing project
<
>
144_rue saint-maur