bona-lemercier

projects

[+]

187_jeu de tacquin

2018

maîtrise d’oeuvre : Bona-Lemercier (agencement intérieur) en association avec Houyez atelier d’architecture

co-traîtants : Ingeligno ingénieur bois, Pouget Consultants fluides et thermique,

conception d’un aménagement intérieur bois pour le concours Adivbois sur le site de St-Herblain

Loire-Atlantique (44)

 

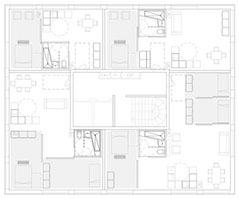
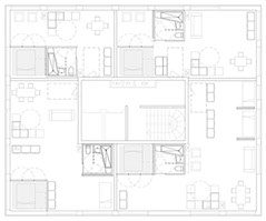
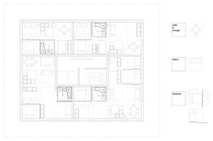
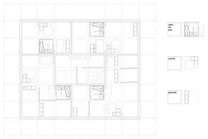
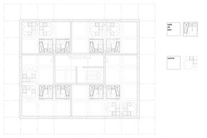
Le projet développé dans le cadre du concours Adivbois sur le site de St-Herblain, propose un agencement intérieur des 48 logements.

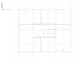
Le principe constructif développé par Mathis sur une trame de 2.70 m par 2.70 m constitue une base idéale pour développer un dispositif modulaire. Sans structure intermédiaire ni retombée de poutre, chaque plateau est un véritable tapis de jeu sur lequel faire glisser les pièces à la manière d’un jeu de Taquin.

Ce déplacement s’opère à trois échelles de temps :

1. liberté d’implantation au stade de la conception éléments fixes dupliqués mais adaptables : cuisines et salles de bain

2. adaptabilité des appartements selon les cycles de vie agencement mécanique; éléments de rangement démontables: extensions cuisines et placards

3. calibrage des pièces selon les usages et l’alternance jour/nuit cloison mobiles et paravents sur rails, passages secrets pour accroître les possibilités de cheminements intérieurs et extérieurs.

concept design of a wooden interior for the competition Adivbois on the site of St-Herblain

Loire-Atlantique (44)

 

The project developed as part of the Adivbois competition on the St.Herblain site, and proposes an interior layout of 48 housing units.

The construction principle developed by Mathis on a grid of 2.70 m by 2.70 m constitutes an ideal basis for developing a modular device. With no intermediate or spin beam structure, each slab is seen as a board on which the pieces slide in the manner of “jeu de Taquin” puzzle.

This shift takes place according to three time scales:

1. freedom of implantation at the design stage, by using duplicated but adaptable fixed elements: such as kitchens and bathrooms

2. adaptability of apartments according to the lifecycles of mechanical arrangements; removable storage units: kitchen and cupboard extensions

3. calibration of the rooms according to usage and the shift of day and night by using mobile partitions and screens on rails. Moreover, secret passages are designed to increase the possibilities of interior and exterior pathways.