bona-lemercier

projects

[+]

033_xy

2001

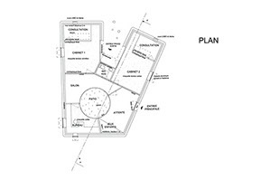
implantation d’une pharmacie et d’un cabinet médical sur une place de bourg

Fleury-sur-Orne, Calvados

implantation of a pharmacy and a doctor’s cabinet in town square

Fleury-sur-Orne, Calvados