bona-lemercier
© Florian Kleinefenn
1 / 12
projects
publications
[+]
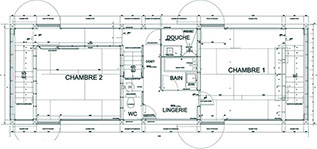
017_maison 4 saisons
2001
construction d’une maison en Seine Maritime, Normandie
construction of a single family house in Seine Maritime, Normandy