<
>
[+]
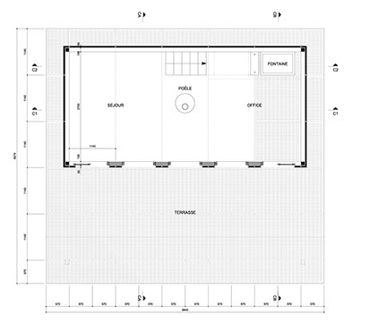
2006
36m2
projet Perfect House Xavier Veilhan par la galerie Jousse, présenté à la FIAC 2006,
Grand Palais, Paris
Perfect House project, Xavier Veilhan, for Jousse gallery, shown at FIAC 2006
085_maison noire