[+]
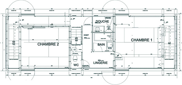
2001
120m2
construction d’une maison en Seine Maritime
Normandie
construction of a single family house in Seine Maritime
Normandy
© Florian Kleinefenn
<
>
017_maison 4 saisons