[+]
2017
3000 m²
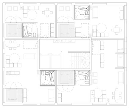
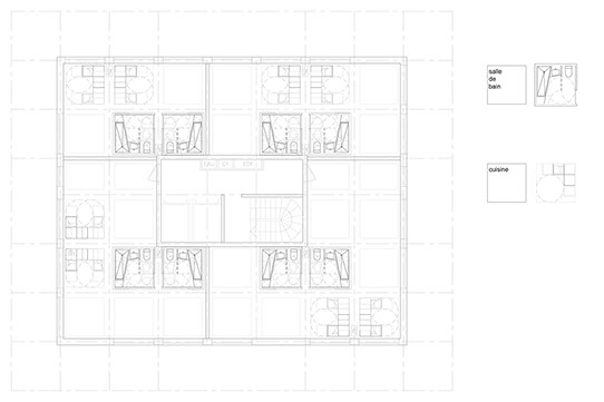
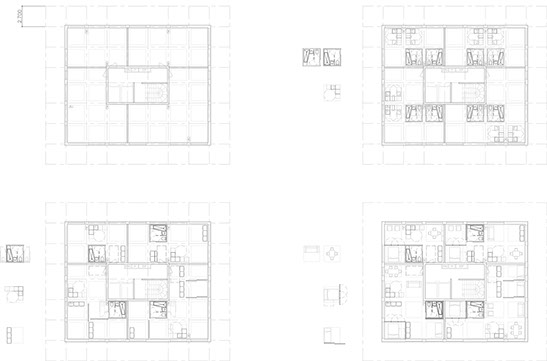
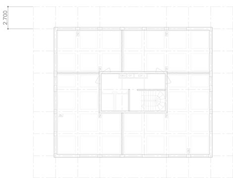
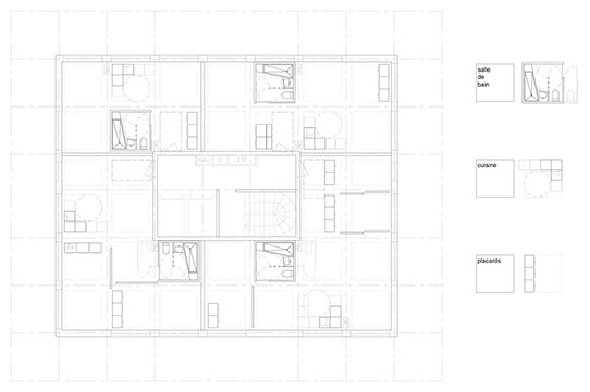
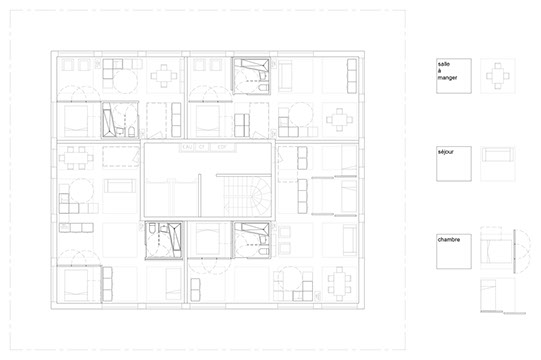
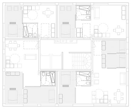
projet développé dans le cadre du concours Adivbois sur le site de St-Herblain, propose un agencement intérieur des 48 logements, réversible à trois échelles de temps.
Loire-Atlantique (44)
project developed as part of the contest Adivbois on the site of St-Herblain, proposes an interior layout of 48 dwellings, reversible at three time scales.
Loire-Atlantique (44)
<
>
187_jeu de taquin