bona - lemercier
<
>
projects
Ppublications
[+]
167_marx et phil
2014
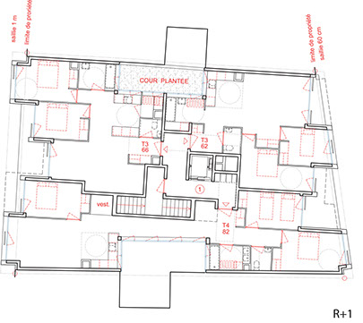
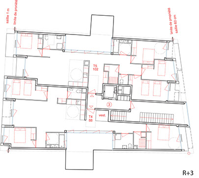
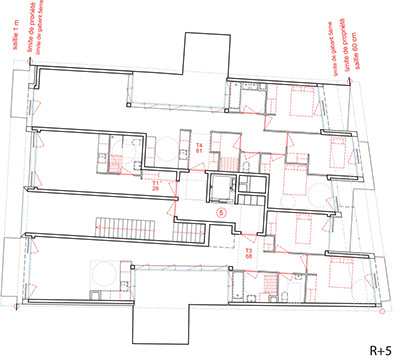
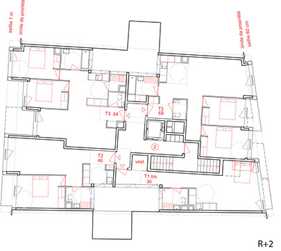
concours restreint pour la construction de 15 logements sociaux et 1 commerce
XVIII Paris
restricted competition for the construction of 15 social housing units and 1 commercial